- 価格
-
価格未定(予定)
- 専有面積
-
50.71㎡~90.52㎡
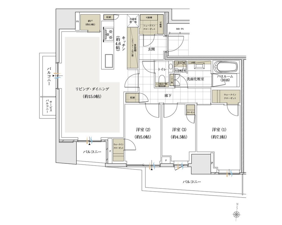
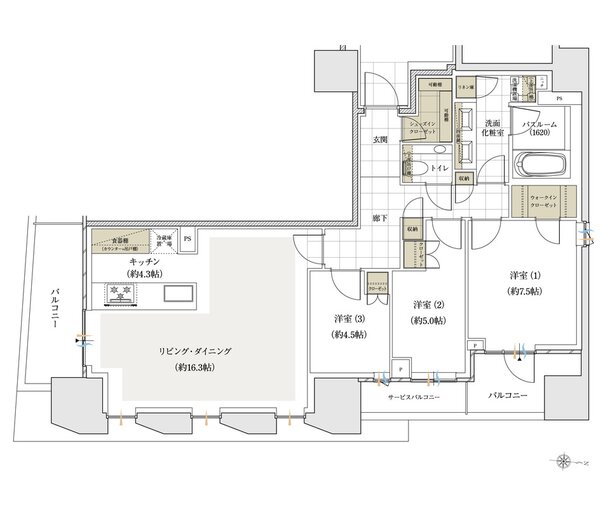
- 間取り
-
2LDK~3LDK
間取りを見る(5件)
- 販売スケジュール
-
2026年7月中旬 販売開始予定

