- 価格
-
価格未定(予定)
- 専有面積
-
36.22㎡~71.81㎡
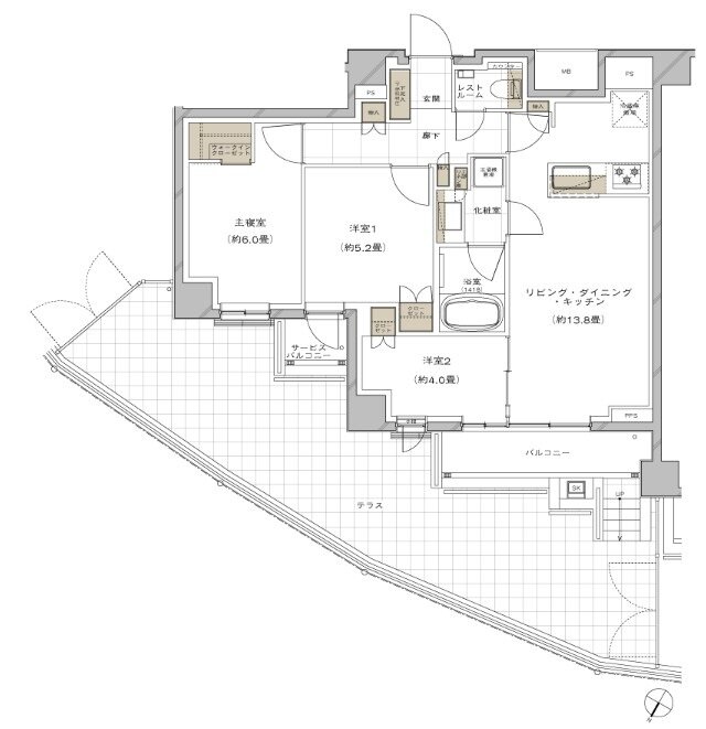
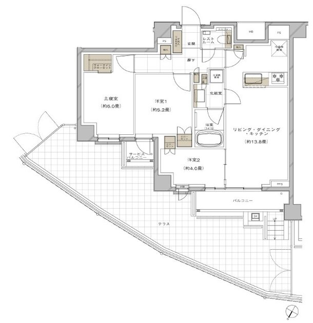
- 間取り
-
1LDK~3LDK
間取りを見る(5件)
- 販売スケジュール
-
2026年4月下旬販売開始予定

