- 価格
-
価格未定(予定)
- 専有面積
-
35.28㎡~127.06㎡
- 間取り
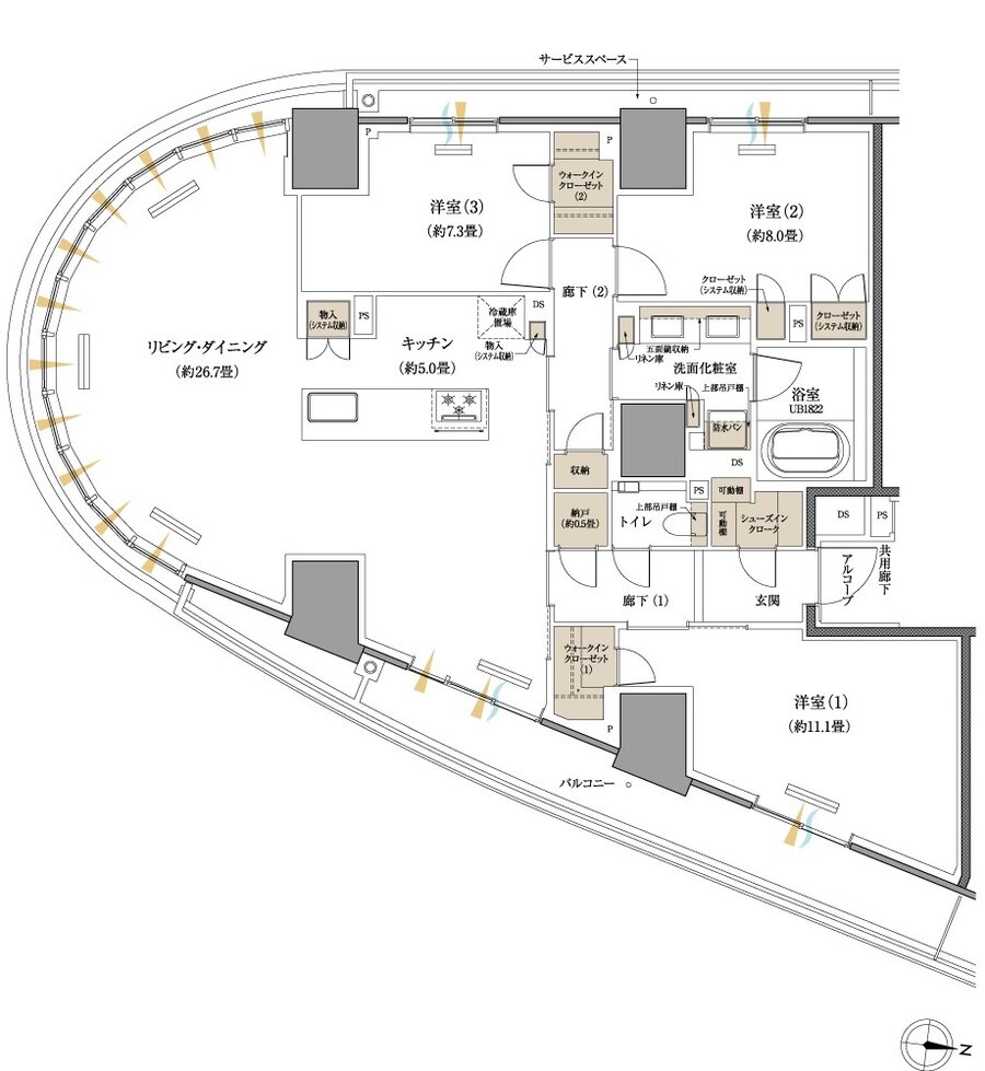
-
1LDK ~ 3LDK
間取りを見る(4件)
- 販売スケジュール
-
2026年7月中旬 販売開始予定

