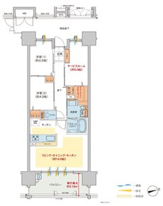
間取り
この物件の詳細情報に戻る〜1LDK(1R・1K・1DK含む)掲載6件
2LDK掲載13件
3LDK掲載9件
※WICはウォークインクローゼット、SCはシューズクローク、FCはファミリークロークの略です。*壁芯寸法です。
関連する他の物件も見てみる
特徴
- 子どもと暮らす(39)
- 対面キッチン(38)
- ウォークインクローゼット(37)
- I型キッチン(37)
- スロップシンク(34)
- 浴室暖房換気乾燥機(32)
- 食器洗い乾燥機(食洗機)(31)
- モデルルーム公開中(30)
- 一人暮らし・二人暮らし向け(30)
- 平置き駐車場(29)
- エコマンション(29)
- 複層ガラス(ペアガラス)(29)
- 宅配ボックス(26)
- 広いバルコニー(24)
- ペット可(23)
- ハンズフリーキー(21)
- 出入口が2か所以上あるキッチン(20)
- 2面バルコニー(20)
- 浴室に窓(18)
- ペット共用施設(18)
- 24時間ゴミ出し可能(16)
- 床暖房(15)
- 玄関からリビングが見えない間取り(13)
- 遮音フローリング(11)
- ポーチ(11)
- 複数沿線利用可能(10)
- ラウンジ(10)
- 二重床/二重天井(9)
- タワーマンション・高層マンション(7)
- 東向き(7)
- 広いリビング(7)
- 省エネ対応(6)
- レンタサイクル(5)
- アイランドキッチン(4)
- 高級マンション・ハイグレードマンション(3)
- オープンキッチン(2)
地域
間取り
価格帯
不動産会社
駅
沿線

