- 価格
-
価格未定(予定)
- 専有面積
-
55.82㎡~130.69㎡
- 間取り
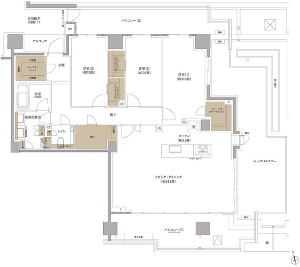
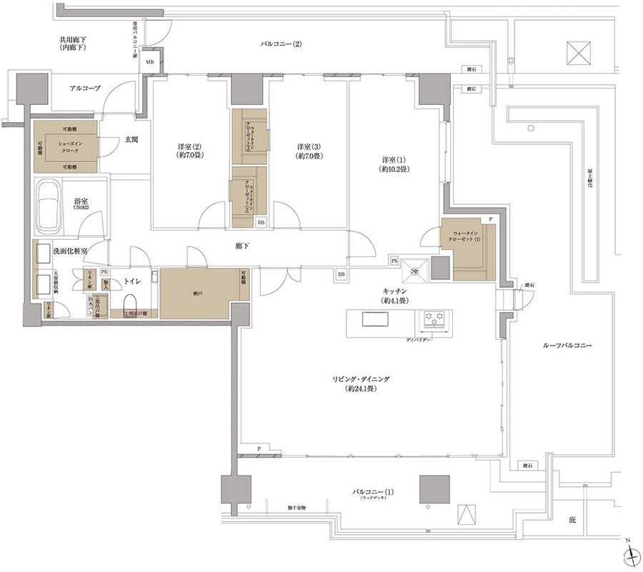
-
2LDK ~ 4LDK
間取りを見る(4件)
- 販売スケジュール
-
2026年4月上旬 販売開始予定

