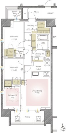
間取り
この物件の詳細情報に戻るS:納戸
WIC:ウォークインクローゼット
SIC:シューズインクローク
FC:ファミリークローク
※掲載の間取りは、計画段階の図面を基に描き起こしているため変更になる場合があります。
関連する他の物件も見てみる
特徴
- 子どもと暮らす(186)
- 対面キッチン(181)
- I型キッチン(179)
- ウォークインクローゼット(171)
- 床暖房(163)
- 一人暮らし・二人暮らし向け(162)
- 可変式間仕切り(145)
- 玄関からリビングが見えない間取り(138)
- 複数沿線利用可能(133)
- シューズインクローゼット(132)
- 宅配ボックス(113)
- 販売前・販売予定(112)
- 南向き(87)
- 駅近(駅徒歩5分以内・駅直結)(81)
- 防災設備(78)
- 内廊下(64)
- アウトフレーム工法(48)
- ハイサッシ(30)
- 南向き中心(27)
- 全戸南向き(16)
- 天井高(2.6m以上)(16)
- アルコーブ(15)
地域
間取り
不動産会社
駅
沿線

