- 価格
-
5490万円~7210万円
月々の支払い額を見る
- 専有面積
-
62.06㎡、70.46㎡
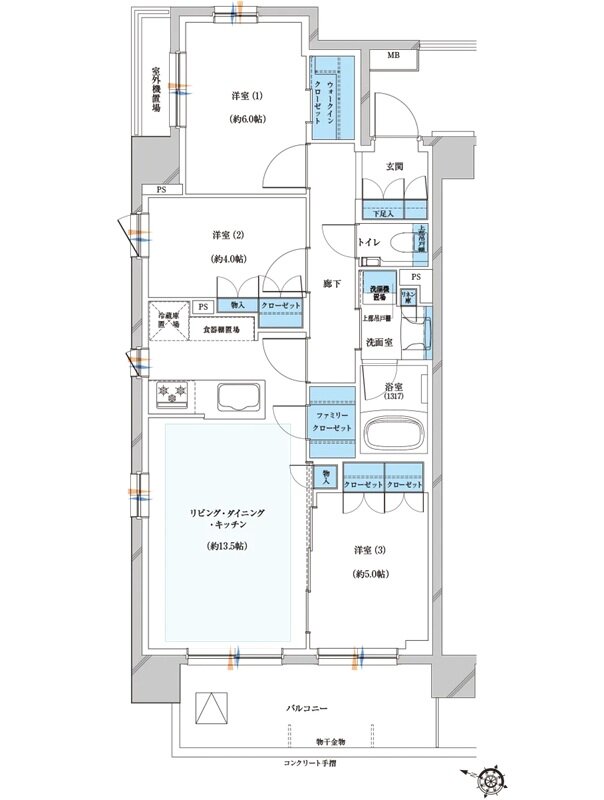
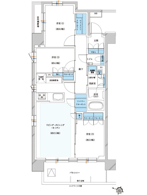
- 間取り
-
3LDK
間取りを見る(7件)
- 販売スケジュール
-
第1期先着順申込受付中

