- 価格
-
3490万円、3960万円
月々の支払い額を見る
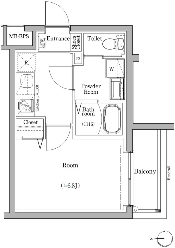
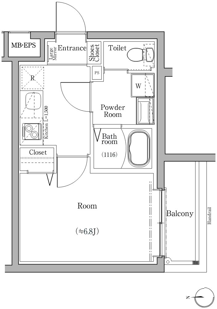
- 専有面積
-
25.11㎡、30.26㎡
- 間取り
-
1K・1DK
間取りを見る(2件)
- 販売スケジュール
-
先着順申込受付中

