- 価格
-
3890万円~4680万円
月々の支払い額を見る
- 専有面積
-
64.64㎡~72.45㎡
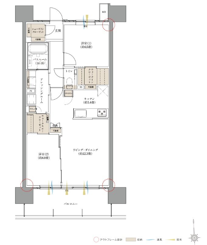
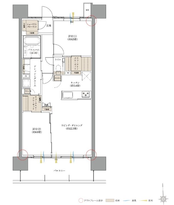
- 間取り
-
2LDK・3LDK
間取りを見る(2件)
- 販売スケジュール
-
先着順申込み受付中 受付場所/「ザ・サーパス高松錦町」マンションギャラリー(サーパスプラザ内)

