- 価格
-
6990万円~8490万円
月々の支払い額を見る
- 専有面積
-
60.98㎡~75.69㎡
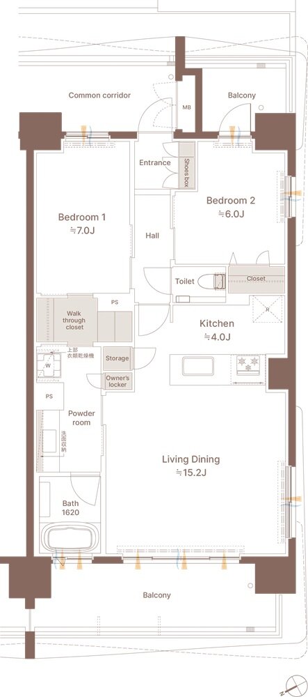
- 間取り
-
2LDK(12戸)
間取りを見る(4件)
- 販売スケジュール
-
先着順申込受付中

