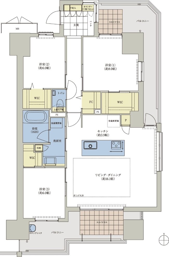
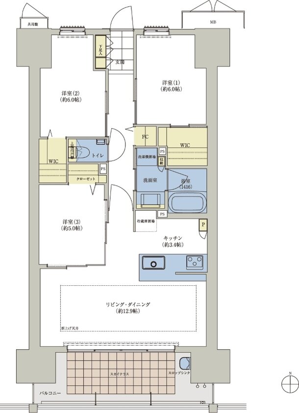
ロイヤルガーデンタワー天神町 間取り 80-A TYPE
タイプ

80-A TYPE

間取り

3LDK+2WIC+FC+P+SIC

専有面積

80.15㎡

バルコニー面積

-

備考

バルコニー面積/[2階]17.86㎡[3〜14階]17.59㎡
※バルコニー面積にはスカイテラス面積を含みます。

  • 玄関からリビングが見えない間取り
  • ウォークインクローゼット
  • シューズインクローゼット
  • 2面バルコニー
  • スロップシンク
  • テラス
  • 南向き
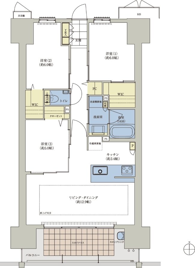
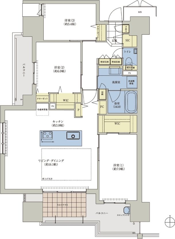
ロイヤルガーデンタワー天神町 間取り 71-B TYPE
タイプ

71-B TYPE

間取り

3LDK+2WIC+2FC+P

専有面積

71.61㎡

バルコニー面積

12.40㎡

備考

※バルコニー面積には スカイテラス面積を含みます。

  • ウォークインクローゼット
  • スロップシンク
  • テラス
  • 南向き
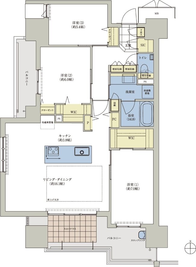
ロイヤルガーデンタワー天神町 間取り 75-C TYPE
タイプ

75-C TYPE

間取り

3LDK+2WIC+FC+P

専有面積

75.07㎡

バルコニー面積

13.00㎡

備考

※バルコニー面積には スカイテラス面積を含みます

  • 可変式間仕切り
  • ウォークインクローゼット
  • スロップシンク
  • 南向き
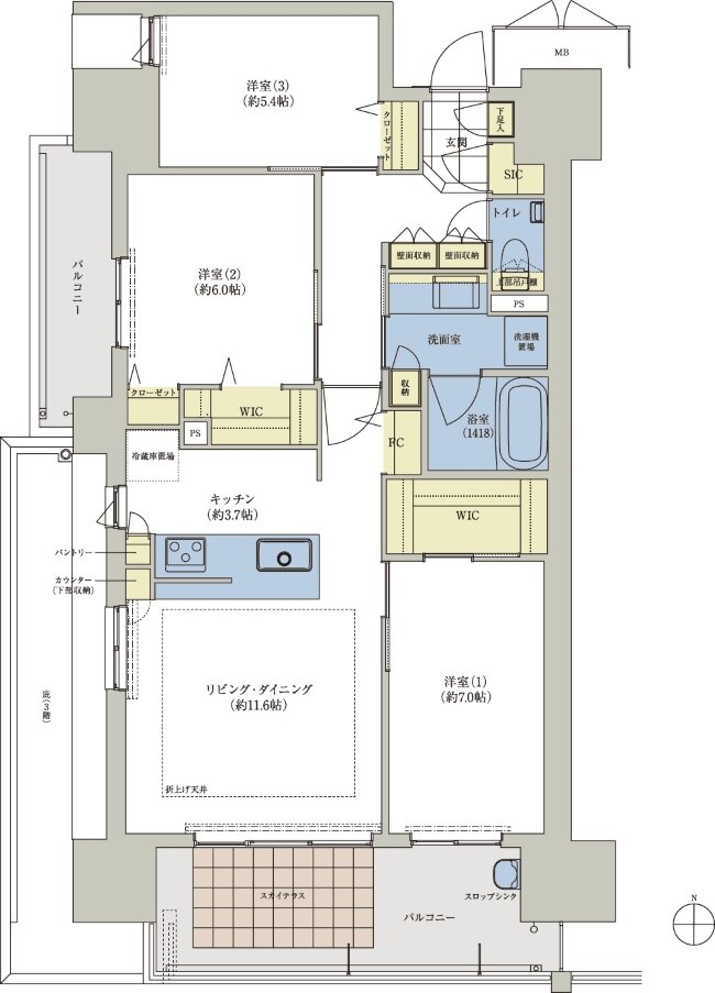
ロイヤルガーデンタワー天神町 間取り 94-D TYPE
タイプ

94-D TYPE

間取り

3LDK+3WIC+FC+P

専有面積

94.72㎡

バルコニー面積

-

備考

バルコニー面積/[2・3F]31.19㎡[4~18F]28.71㎡
※バルコニー面積には スカイテラス面積を含みます。

  • ウォークインクローゼット
  • 3面バルコニー
  • L字バルコニー
  • スロップシンク
  • テラス
  • 南向き
ロイヤルガーデンタワー天神町 間取り 87-E TYPE
タイプ

87-E TYPE

間取り

3LDK+2WIC+FC+P+SIC

専有面積

87.45㎡

バルコニー面積

-

備考

バルコニー面積/[15F]22.18㎡[16~18F]19.78㎡
※バルコニー面積には スカイテラス面積を含みます。

  • 玄関からリビングが見えない間取り
  • 広いリビング
  • ウォークインクローゼット
  • シューズインクローゼット
  • 2面バルコニー
  • スロップシンク
  • 南向き

このページの一番上へ