- 価格
-
価格未定(予定)
- 専有面積
-
61.81㎡~148.87㎡
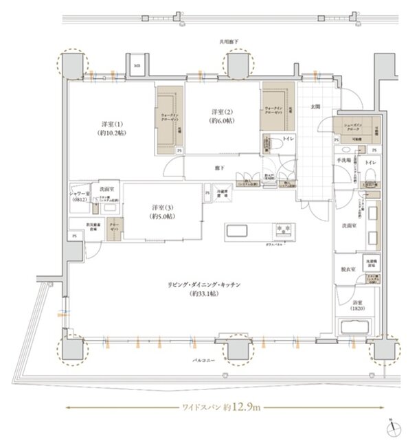
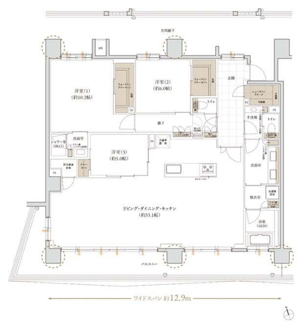
- 間取り
-
2LDK・3LDK
間取りを見る(2件)
- 販売スケジュール
-
販売予定時期:2026年3月下旬

