レ・ジェイド 那覇安里駅前の間取り一覧

お気に入りに
追加する
お気に入りに
追加済み

2LDK掲載1

3LDK掲載5

WIC:ウォークインクローゼット WTC:ウォークスルークローゼット SIC:シューズインクローク

レ・ジェイド 那覇安里駅前 間取り B2 Type
タイプ

B2 Type

間取り

2LDK+WTC+SIC

専有面積

61.81㎡

バルコニー面積

8.96㎡

備考

※専有面積に防災備蓄倉庫面積 0.70㎡含む
アルコーブ面積:0.68㎡

  • アルコーブ
  • 可変式間仕切り
  • シューズインクローゼット
  • 南向き
レ・ジェイド 那覇安里駅前 間取り A2 Type
タイプ

A2 Type

間取り

3LDK+WIC+SIC

専有面積

77.38㎡

バルコニー面積

17.37㎡

備考

※専有面積に防災備蓄倉庫面積 1.29㎡含む
アルコーブ面積/3.60㎡

  • アルコーブ
  • 可変式間仕切り
  • ウォークインクローゼット
  • シューズインクローゼット
  • 南向き
レ・ジェイド 那覇安里駅前 間取り C2 type
タイプ

C2 type

間取り

3LDK+SIC

専有面積

67.18㎡

バルコニー面積

9.92㎡

備考

※防災備蓄倉庫面積:0.64㎡
アルコーブ面積:1.83㎡

  • アルコーブ
  • 可変式間仕切り
  • シューズインクローゼット
  • 南向き
レ・ジェイド 那覇安里駅前 間取り D2 type
タイプ

D2 type

間取り

3LDK+2WIC+SIC

専有面積

74.74㎡

バルコニー面積

11.04㎡

備考

※防災備蓄倉庫面積:0.95㎡
アルコーブ面積:2.00㎡

  • アルコーブ
  • 可変式間仕切り
  • ウォークインクローゼット
  • シューズインクローゼット
  • 出入口が2か所以上あるキッチン
  • 南向き
レ・ジェイド 那覇安里駅前 間取り E2 Type
タイプ

E2 Type

間取り

3LDK+2WIC+SIC

専有面積

80.52㎡

バルコニー面積

17.75㎡

備考

※専有面積に防災備蓄倉庫面積 1.02㎡含む
室外機置場面積:1.35㎡
アルコーブ面積:3.90㎡

  • アルコーブ
  • ウォークインクローゼット
  • シューズインクローゼット
  • 2面バルコニー
  • L字バルコニー
  • 南向き
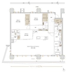
レ・ジェイド 那覇安里駅前 間取り G type 〈最上階角住戸〉
タイプ

G type 〈最上階角住戸〉

間取り

3LDK+3WIC+FC+SIC

専有面積

148.87㎡

バルコニー面積

31.08㎡

備考

※防災備蓄倉庫面積 1.50㎡含む
バルコニー面積/31.08㎡
アルコーブ面積/7.45㎡

  • アルコーブ
  • 玄関からリビングが見えない間取り
  • 可変式間仕切り
  • 広いリビング
  • ウォークインクローゼット
  • シューズインクローゼット
  • 2面バルコニー
  • L字バルコニー
  • 南向き

このページの一番上へ