- 価格
-
1億2490万円~3億9890万円
月々の支払い額を見る
- 専有面積
-
61.99㎡~145.22㎡
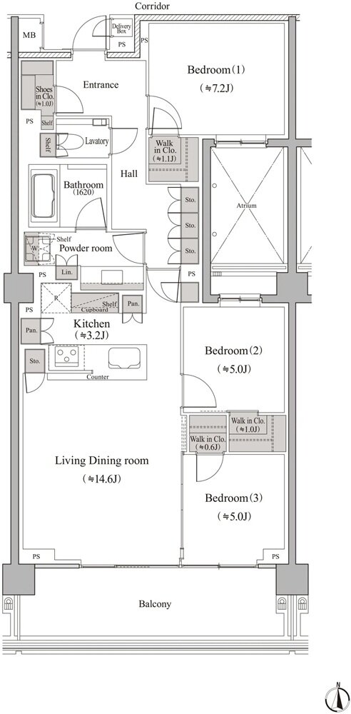
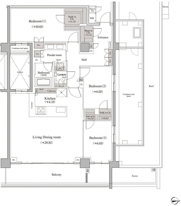
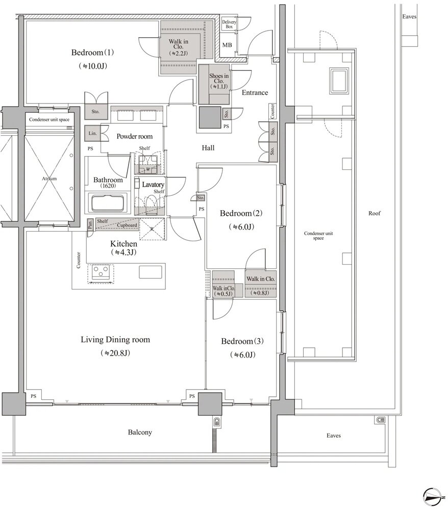
- 間取り
-
2LDK・3LDK
間取りを見る(5件)
- 販売スケジュール
-
登録受付期間:2026年3月14日~2026年3月22日 登録受付時間:10:00~18:00(平日は11:00~18:00 最終日22日は17:00まで) 選定方法:抽選 抽選日:2026年3月23日(月)11:00~

