イノバス博多天神プロジェクトの間取り一覧

お気に入りに
追加する
お気に入りに
追加済み

2LDK掲載2

3LDK掲載2

WIC:ウォークインクローゼット
SIC:シューズインクローク

※掲載の図面は計画段階のものであり、施工上の都合・改良等により変更する場合があります。予めご了承ください。
※方位記号には若干誤差があります。正確な方位については設計図書でご確認ください。

イノバス博多天神プロジェクト 間取り Dタイプ(イノバス博多神屋)
タイプ

Dタイプ(イノバス博多神屋)

間取り

2LDK

専有面積

54.45㎡

バルコニー面積

10.64㎡

備考

室外機置場面積:1.55㎡

  • 玄関からリビングが見えない間取り
  • スロップシンク
  • 南西向き
イノバス博多天神プロジェクト 間取り Aタイプ(イノバス博多呉服)
タイプ

Aタイプ(イノバス博多呉服)

間取り

2LDK+WIC+SIC

専有面積

52.70㎡

バルコニー面積

8.01㎡

  • 可変式間仕切り
  • ウォークインクローゼット
  • シューズインクローゼット
  • 南西向き
イノバス博多天神プロジェクト 間取り Eタイプ(イノバス博多神屋)
タイプ

Eタイプ(イノバス博多神屋)

間取り

3LDK+2WIC

専有面積

68.62㎡

バルコニー面積

-

備考

バルコニー1面積:12.17㎡
バルコニー2面積:4.57㎡

  • ウォークインクローゼット
  • スロップシンク
  • 南西向き
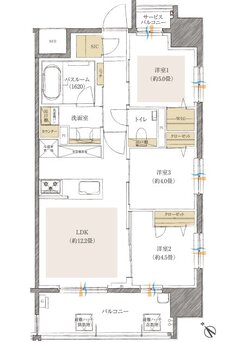
イノバス博多天神プロジェクト 間取り Dタイプ(イノバス博多呉服)
タイプ

Dタイプ(イノバス博多呉服)

間取り

3LDK+WIC+SIC

専有面積

60.24㎡

バルコニー面積

9.45㎡

備考

サービスバルコニー面積:1.39㎡

  • ウォークインクローゼット
  • シューズインクローゼット
  • 南西向き

このページの一番上へ