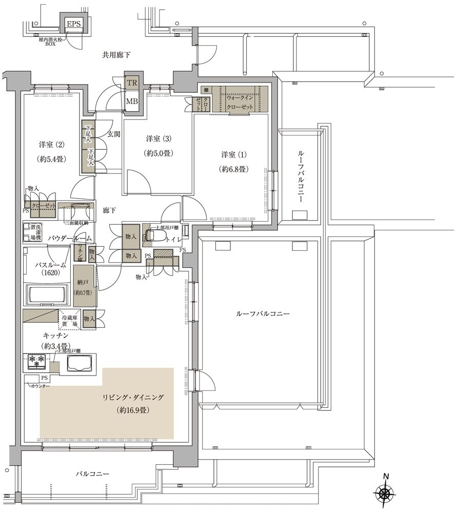
プレミスト中央林間 間取り D type
タイプ

D type

間取り

3LDK+2WIC+N(納戸)+TR

専有面積

72.09㎡

バルコニー面積

10.8㎡

備考

※専有面積にはトランクルーム面積(0.30㎡)が含まれております。
【1】多彩な収納計画
【2】時短楽な家事
【3】快適性の向上
【4】多様性に対応

  • 可変式間仕切り
  • ウォークインクローゼット
  • トランクルーム
  • 南向き
プレミスト中央林間 間取り A type
タイプ

A type

間取り

3LDK+4WIC+TR

専有面積

85.51㎡

バルコニー面積

8.55㎡

備考

※専有面積にはトランクルーム面積(0.36㎡)が含まれております
サービスバルコニー面積:1.70㎡

  • 玄関からリビングが見えない間取り
  • 広いリビング
  • ウォークインクローゼット
  • トランクルーム
  • 南向き
プレミスト中央林間 間取り E type
タイプ

E type

間取り

3LDK+3WIC+N(納戸)+リモートスペース+TR

専有面積

72.94㎡

バルコニー面積

10.80㎡

備考

※専有面積にはトランクルーム面積(0.30㎡)が含まれております

  • 可変式間仕切り
  • ウォークインクローゼット
  • トランクルーム
  • 南向き

このページの一番上へ