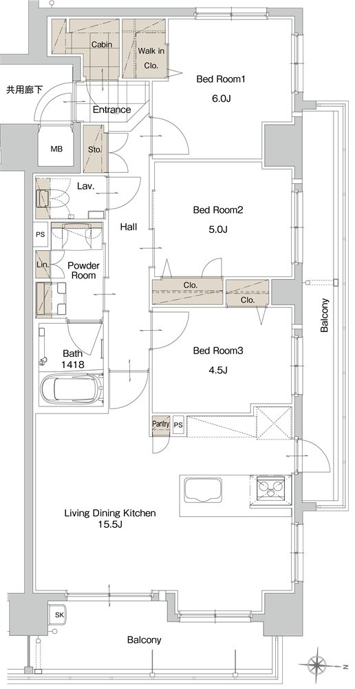
サンパーク西新南レジデンス 間取り A type
タイプ

A type

間取り

4LDK+WIC+Cabin+2BAL

専有面積

81.57㎡

バルコニー面積

13.68㎡

備考

専有面積※2~8階
サービスバルコニー面積:5.26㎡

  • 玄関からリビングが見えない間取り
  • 可変式間仕切り
  • ウォークインクローゼット
  • 出入口が2か所以上あるキッチン
  • 2面バルコニー
  • スロップシンク
  • 東向き
サンパーク西新南レジデンス 間取り E type
タイプ

E type

間取り

3LDK+WIC+Cabin+2BAL

専有面積

72㎡

バルコニー面積

8.68㎡

備考

サービスバルコニー面積:8.70㎡

  • 玄関からリビングが見えない間取り
  • ウォークインクローゼット
  • 出入口が2か所以上あるキッチン
  • 2面バルコニー
  • スロップシンク
  • 東向き

このページの一番上へ