- 価格
-
4100万円台~7600万円台(100万円単位)(予定)
月々の支払い額を見る
- 専有面積
-
60.19㎡~81.65㎡
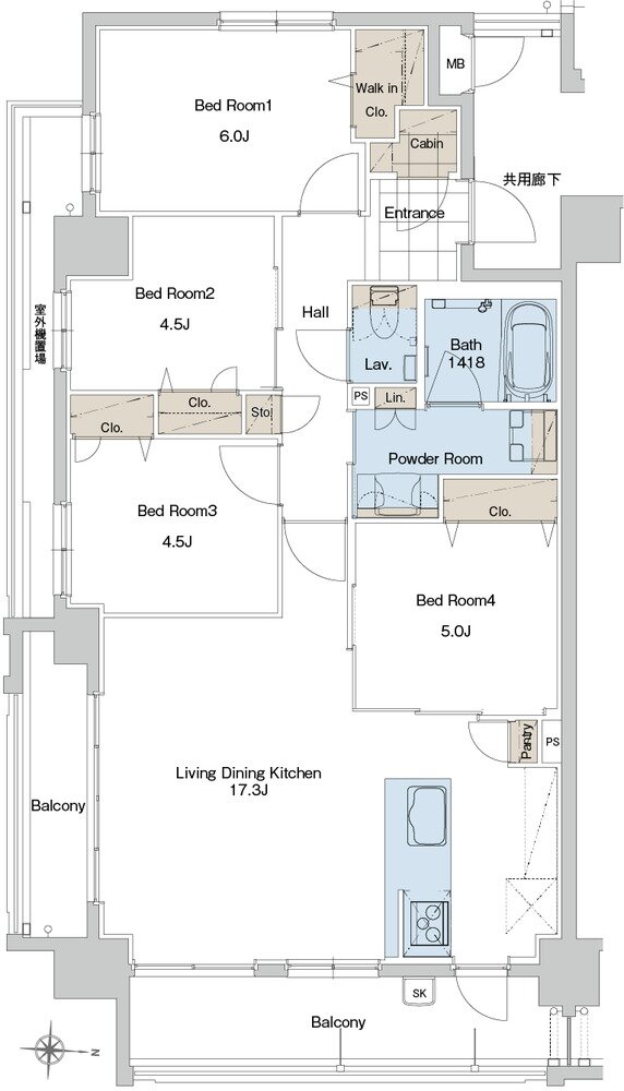
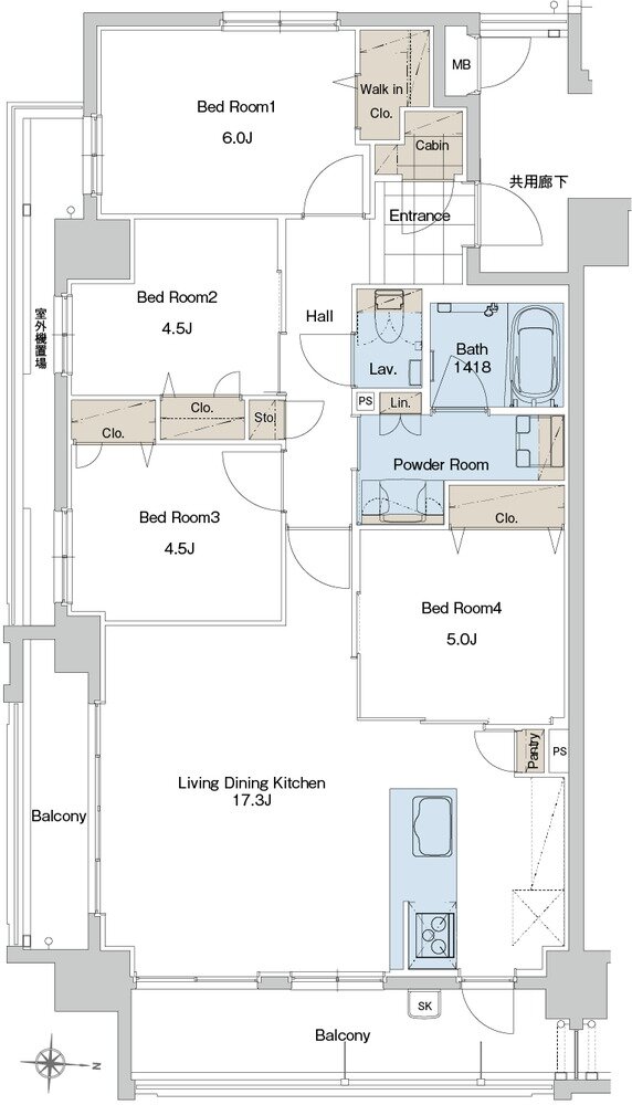
- 間取り
-
3LDK・4LDK
間取りを見る(2件)
- 販売スケジュール
-
2026年2月販売開始予定

