- 価格
-
価格未定(予定)
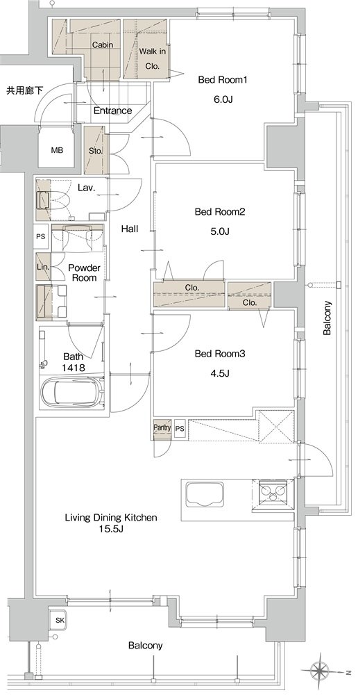
- 専有面積
-
60.19㎡~81.65㎡
- 間取り
-
3LDK・4LDK
間取りを見る(1件)
- 販売スケジュール
-
2026年2月販売開始予定