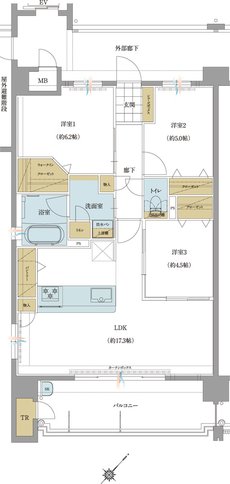
間取り
この物件の詳細情報に戻る3LDK掲載3件
関連する他の物件も見てみる
特徴
- 子どもと暮らす(104)
- 対面キッチン(95)
- I型キッチン(95)
- ウォークインクローゼット(84)
- 平置き駐車場(81)
- 駐車場100%以上(71)
- 食器洗い乾燥機(食洗機)(69)
- モデルルーム公開中(69)
- 浴室暖房換気乾燥機(68)
- ペット可(67)
- 可変式間仕切り(66)
- 二重床/二重天井(66)
- 宅配ボックス(62)
- スロップシンク(57)
- ハンズフリーキー(52)
- エコマンション(47)
- ZEHマンション(45)
- 浴室に窓(45)
- 複数沿線利用可能(42)
- ペット共用施設(41)
- ラウンジ(31)
- 南東向き(27)
- トランクルーム(14)
- アウトフレーム工法(8)
地域
間取り
価格帯
不動産会社
駅
沿線

