- 価格
-
4098万円~4898万円
月々の支払い額を見る
- 専有面積
-
67.81㎡~79.24㎡
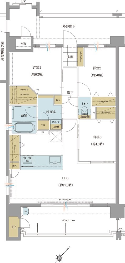
- 間取り
-
3LDK・4LDK
間取りを見る(4件)
- 販売スケジュール
-
先着順申込み受付中

