ザ・ファインタワー八王子 間取り 121M1 type[プレミアム]
タイプ

121M1 type[プレミアム]

間取り

4LDK+3WIC+SIC+N

専有面積

121.22㎡

バルコニー面積

42.78㎡

  • 玄関からリビングが見えない間取り
  • 可変式間仕切り
  • 広いリビング
  • ウォークインクローゼット
  • シューズインクローゼット
  • 2面バルコニー
  • L字バルコニー
  • 西向き
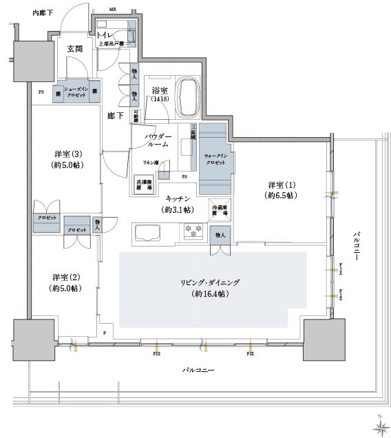
ザ・ファインタワー八王子 間取り 81F2 type
タイプ

81F2 type

間取り

3LDK+WIC+SIC

専有面積

81.7㎡

バルコニー面積

33.64㎡

  • 玄関からリビングが見えない間取り
  • 広いリビング
  • ウォークインクローゼット
  • シューズインクローゼット
  • 2面バルコニー
  • L字バルコニー
  • 南向き
ザ・ファインタワー八王子 間取り 72I1 type
タイプ

72I1 type

間取り

3LDK+WIC+N

専有面積

72㎡

バルコニー面積

14.67㎡

  • 玄関からリビングが見えない間取り
  • ウォークインクローゼット
  • 西向き

このページの一番上へ