- 価格
-
5888万円~6198万円
月々の支払い額を見る
- 専有面積
-
67.20㎡~70.92㎡
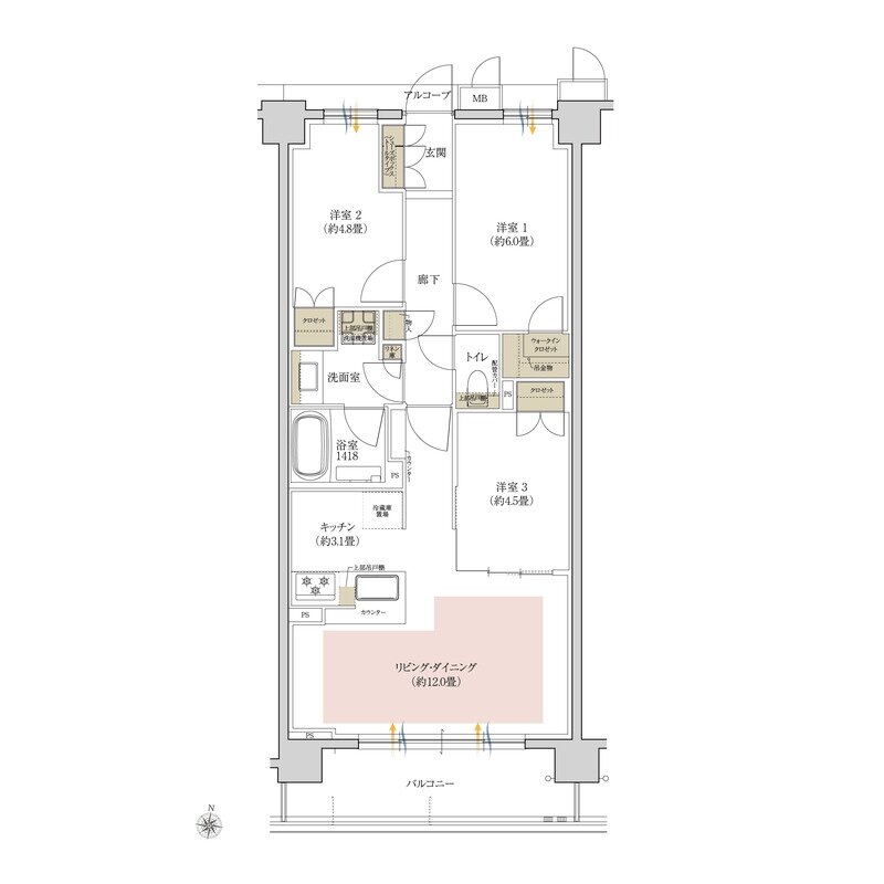
- 間取り
-
3LDK
間取りを見る(4件)
- 販売スケジュール
-
先着順申込受付:2026年3月14日(土)10:00開始

