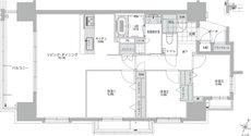
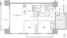
間取り
この物件の詳細情報に戻る3LDK掲載6件
関連する他の物件も見てみる
特徴
- 子どもと暮らす(22)
- 対面キッチン(21)
- I型キッチン(21)
- ウォークインクローゼット(20)
- モデルルーム公開中(18)
- 食器洗い乾燥機(食洗機)(18)
- 一人暮らし・二人暮らし向け(17)
- 平置き駐車場(16)
- 複層ガラス(ペアガラス)(16)
- 玄関からリビングが見えない間取り(15)
- 浴室暖房換気乾燥機(15)
- ハンズフリーキー(13)
- エコマンション(13)
- 二重床/二重天井(13)
- 宅配ボックス(13)
- 可変式間仕切り(11)
- 一括受電サービス(11)
- フラット35(9)
- 駐車場100%以上(8)
- ポーチ(6)
- 広いリビング(6)
- ZEHマンション(6)
- 全戸南向き(5)
- ディスポーザー(4)
- バリアフリー(4)
- 南西向き(4)
- IoTマンション(3)
- トランクルーム(2)
- 南西向き中心(1)
地域
間取り
価格帯
不動産会社

