シエリアタワー北浜の間取り一覧

お気に入りに
追加する
お気に入りに
追加済み

〜1LDK(1R・1K・1DK含む)掲載1

2LDK掲載2

3LDK掲載3

WIC:ウォークインクロゼット MB:メーターボックス MC:マルチクロゼット SIC:シューズインクロゼット MB: メーターボックス UR:ユーティリティルーム ET:エコキュートタンク Sta.:物入

※掲載の図面は計画段階のものであり、今後変更になる場合がございます。

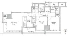
シエリアタワー北浜 間取り D TYPE
タイプ

D TYPE

間取り

1LDK+WIC+SIC

専有面積

43.53㎡

バルコニー面積

-

備考

サービスバルコニー面積:7.99㎡

  • 広いリビング
  • ウォークインクローゼット
  • シューズインクローゼット
  • 東向き
シエリアタワー北浜 間取り B TYPE
タイプ

B TYPE

間取り

2LDK+2WIC

専有面積

64.96㎡

バルコニー面積

-

備考

サービスバルコニー面積:5.81㎡

  • ウォークインクローゼット
  • 南向き
シエリアタワー北浜 間取り F TYPE
タイプ

F TYPE

間取り

2LDK+N+WIC+SIC

専有面積

67.83㎡

バルコニー面積

-

備考

サービスバルコニー面積:8.90㎡

  • 玄関からリビングが見えない間取り
  • ウォークインクローゼット
  • シューズインクローゼット
  • 東向き
シエリアタワー北浜 間取り C TYPE
タイプ

C TYPE

間取り

3LDK+WIC+MC

専有面積

80.19㎡

バルコニー面積

-

備考

サービスバルコニー面積:13.39㎡

  • 玄関からリビングが見えない間取り
  • 広いリビング
  • ウォークインクローゼット
  • 2面バルコニー
  • 南東向き
シエリアタワー北浜 間取り J TYPE
タイプ

J TYPE

間取り

3LDK+DEN+2WIC+SIC

専有面積

100.00㎡

バルコニー面積

-

備考

サービスバルコニー面積:11.93㎡

  • 玄関からリビングが見えない間取り
  • 広いリビング
  • ウォークインクローゼット
  • シューズインクローゼット
  • 2面バルコニー
  • 南東向き
シエリアタワー北浜 間取り S TYPE
タイプ

S TYPE

間取り

3LDK+N+3WIC+UR+SIC

専有面積

125.56㎡

バルコニー面積

-

備考

サービスバルコニー面積:20.54㎡

  • 玄関からリビングが見えない間取り
  • 広いリビング
  • ウォークインクローゼット
  • シューズインクローゼット
  • 2面バルコニー
  • 南向き

このページの一番上へ