- 価格
-
8999万円
月々の支払い額を見る
- 専有面積
-
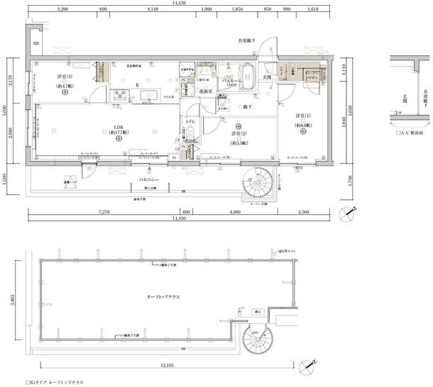
70.38㎡
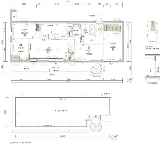
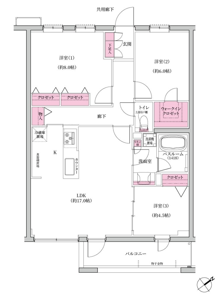
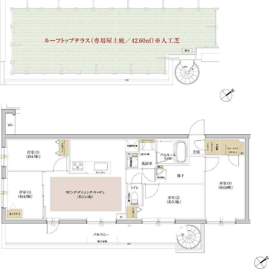
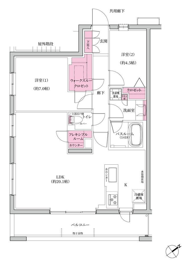
- 間取り
-
3LDK
間取りを見る(8件)
- 販売スケジュール
-
※販売方法/抽選販売 ※登録受付期間/2026年4月4日(土)10:00~2026年5月28日(木)16:00まで ※抽選日時/2026年5月28日(木)17:00

