- 価格
-
8999万円
月々の支払い額を見る
- 専有面積
-
70.38㎡
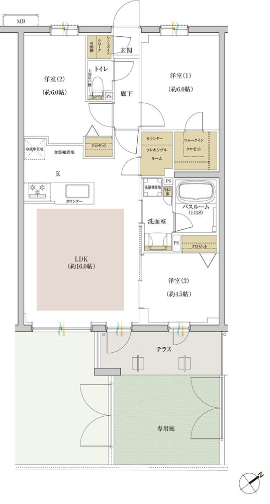
- 間取り
-
3LDK
間取りを見る(9件)
- 販売スケジュール
-
※販売方法/抽選販売 ※登録受付期間/2026年1月5日(月)10:00~2026年3月29日(日)16:00まで ※抽選日時/2026年3月29日(日)17:00

