- 価格
-
価格未定(予定)
- 専有面積
-
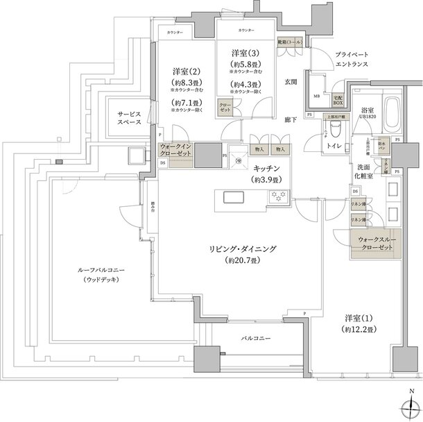
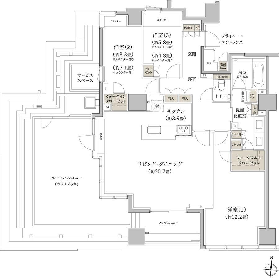
76.39㎡~152.58㎡
- 間取り
-
2LDK ~ 3LDK
間取りを見る(4件)
- 販売スケジュール
-
2026年1月中旬 販売開始予定

