- 価格
-
3298万円~9298万円
月々の支払い額を見る
- 専有面積
-
54.4㎡~110.1㎡
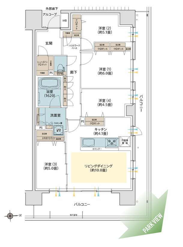
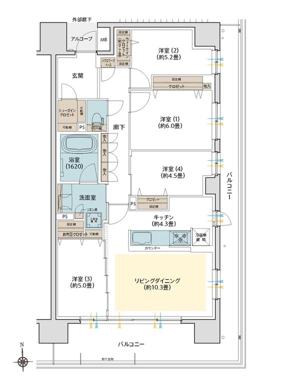
- 間取り
-
2LDK~4LDK
間取りを見る(5件)
- 販売スケジュール
-
2026年2月12日(木)AM11:00より登録受付開始 登録受付期間/2026年2月12日(木)AM11:00~2月13日(金)PM15:00 抽選日時/2026年2月13日(金)PM16:00 登録受付場所・抽選場所/デュオヒルズ水賀池公園ヴェリテマンションギャラリー

