- 価格
-
7050万円~9440万円
月々の支払い額を見る
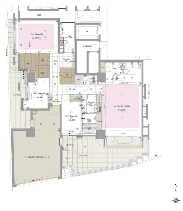
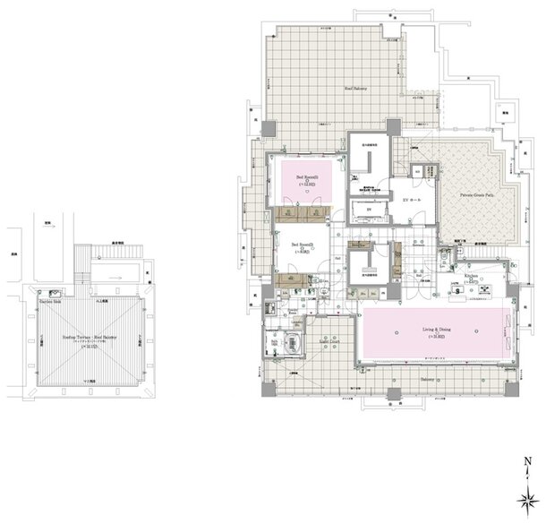
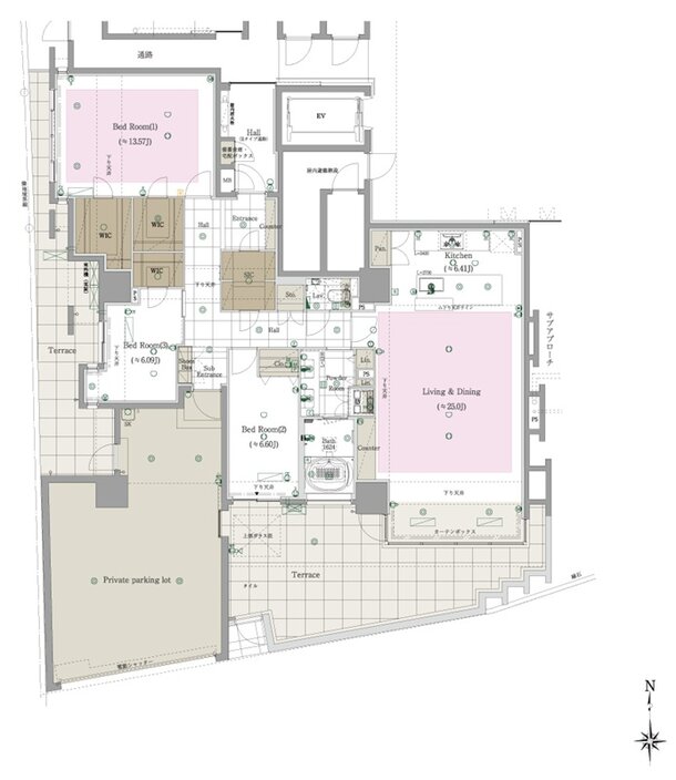
- 専有面積
-
81.35㎡~104.16㎡
- 間取り
-
3LDK・4LDK
間取りを見る(8件)
- 販売スケジュール
-
先着順申込み受付中

