- 価格
-
価格未定(予定)
- 専有面積
-
66.07㎡~106.92㎡
- 間取り
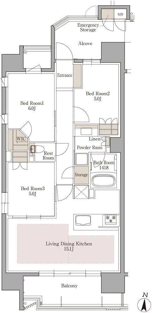
-
2LDK+S・3LDK
間取りを見る(4件)
- 販売スケジュール
-
販売予定時期:2025年12月中旬

