- 価格
-
価格未定(予定)
- 専有面積
-
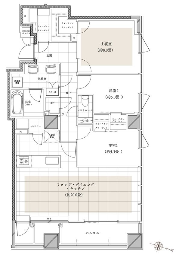
70.68㎡~125.74㎡
- 間取り
-
1LDK+S~3LDK
間取りを見る(6件)
- 販売スケジュール
-
〇販売開始予定時期:2026年1月下旬

