- 価格
-
3200万円台~1億円台(100万円単位)(予定)
月々の支払い額を見る
- 専有面積
-
54.42㎡~102.32㎡
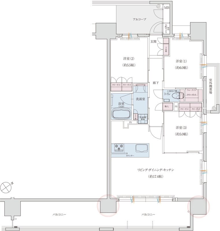
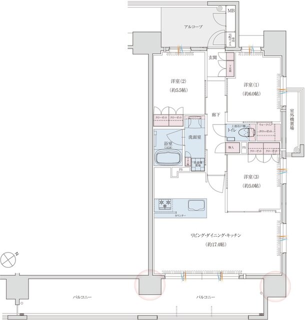
- 間取り
-
2LDK~4LDK
間取りを見る(6件)
- 販売スケジュール
-
2026年3月中旬 販売開始(予定)

