- 価格
-
4998万円~1億998万円
月々の支払い額を見る
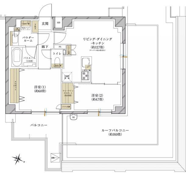
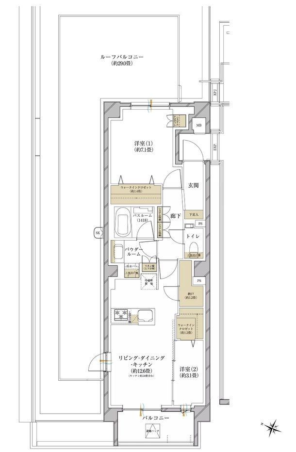
- 専有面積
-
30.41㎡~71.26㎡
- 間取り
-
1LDK~3LDK
間取りを見る(7件)
- 販売スケジュール
-
先着順申込受付中

