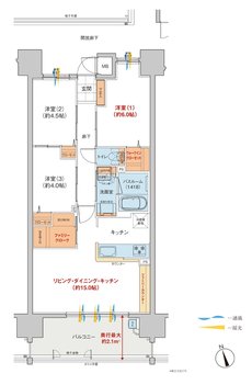
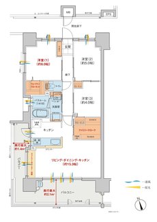
間取り
この物件の詳細情報に戻る2LDK掲載7件
3LDK掲載20件
※WICはウォークインクローゼット、FCはファミリークロークの略です。*壁芯寸法です。
関連する他の物件も見てみる
特徴
- 子どもと暮らす(40)
- 対面キッチン(39)
- I型キッチン(38)
- スロップシンク(35)
- ウォークインクローゼット(35)
- モデルルーム公開中(33)
- 食器洗い乾燥機(食洗機)(31)
- 平置き駐車場(31)
- エコマンション(30)
- 複層ガラス(ペアガラス)(30)
- 一人暮らし・二人暮らし向け(28)
- 宅配ボックス(27)
- 駐車場100%以上(27)
- 広いバルコニー(25)
- 2面バルコニー(21)
- 出入口が2か所以上あるキッチン(21)
- 南向き(19)
- 浴室に窓(18)
- 可変式間仕切り(15)
- ポーチ(12)
- 玄関からリビングが見えない間取り(12)
- シューズインクローゼット(11)
- 駅近(駅徒歩5分以内・駅直結)(10)
- 複数沿線利用可能(10)
- 遮音フローリング(9)
- 大規模マンション(7)
- 広いリビング(6)
- タワーマンション・高層マンション(6)
- 東向き(6)
- レンタサイクル(5)
- テラス(2)
- カーシェア(2)
地域
間取り
価格帯
不動産会社
駅
沿線

