- 価格
-
5750万円~2億290万円
月々の支払い額を見る
- 専有面積
-
25.85㎡~62.08㎡
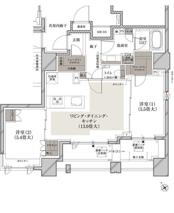
- 間取り
-
1R~2LDK
間取りを見る(5件)
- 販売スケジュール
-
登録受付日時:2026年3月20日(金・祝)10:00~2026年3月21日(土) ※3月21日(土)は12:00登録締切 登録受付場所:東急リバブル(株)銀座サロン 選定方法:登録抽選 抽選日時:2026年3月21日(土)13:00

