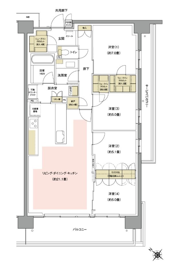
ルネ川口ユトリエ 間取り Aタイプ
タイプ

Aタイプ

間取り

4LDK+2WIC+SIC+N

専有面積

100.64㎡

バルコニー面積

17.84㎡

備考

サービスバルコニー面積/5.89㎡

  • 玄関からリビングが見えない間取り
  • 可変式間仕切り
  • 広いリビング
  • ウォークインクローゼット
  • シューズインクローゼット
  • 2面バルコニー
  • L字バルコニー
  • 南西向き
ルネ川口ユトリエ 間取り Gタイプ
タイプ

Gタイプ

間取り

3LDK+2WIC+N

専有面積

91.74㎡

バルコニー面積

-

備考

バルコニー面積(1〜6階)/13.08㎡
バルコニー面積(7階)/13.20㎡

  • 可変式間仕切り
  • 広いリビング
  • ウォークインクローゼット
  • 南西向き
ルネ川口ユトリエ 間取り Jタイプ
タイプ

Jタイプ

間取り

4LDK+2WIC+SIC+N

専有面積

100.11㎡

バルコニー面積

13.96㎡

備考

サービスバルコニー面積/9.43㎡

  • 玄関からリビングが見えない間取り
  • 可変式間仕切り
  • ウォークインクローゼット
  • シューズインクローゼット
  • 出入口が2か所以上あるキッチン
  • 2面バルコニー
  • 南西向き

このページの一番上へ