間取り
この物件の詳細情報に戻る2LDK掲載4件
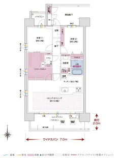
※掲載の図面は計画段階のもので変更が生じる場合がございます。予めご了承ください。
※バルコニーの奥行は、壁の中心から手すり壁の中心までの寸法であり、実際に使用できる寸法とは異なります。
※無償オプションには期限がございます。詳しくは係員にお尋ねください。
【メニュープラン検討上のご注意】
・メニュープランには受付期限があります。
・各階のバルコニーの形状・仕様に異なる部分がございます。詳しくは基本プランを参照してください。
関連する他の物件も見てみる
特徴
- 対面キッチン(33)
- I型キッチン(33)
- 子どもと暮らす(33)
- ウォークインクローゼット(30)
- 可変式間仕切り(27)
- 床暖房(25)
- 複数沿線利用可能(25)
- 宅配ボックス(23)
- 南向き(23)
- 食器洗い乾燥機(食洗機)(22)
- モデルルーム公開中(21)
- 浴室暖房換気乾燥機(21)
- 複層ガラス(ペアガラス)(19)
- ZEHマンション(18)
- エコマンション(17)
- ハンズフリーキー(17)
- 24時間ゴミ出し可能(16)
- 駅近(駅徒歩5分以内・駅直結)(15)
- 販売前・販売予定(15)
- スロップシンク(10)
- 出入口が2か所以上あるキッチン(10)
- 広いリビング(9)
- アウトフレーム工法(6)
- 広いバルコニー(3)
- 一括受電サービス(3)
- 南向き中心(2)
- 全戸南向き(2)
地域
間取り
価格帯
不動産会社
駅
沿線

