- 価格
-
4400万円台~5900万円台(100万円単位)(予定)
月々の支払い額を見る
- 専有面積
-
67.36㎡~74.88㎡
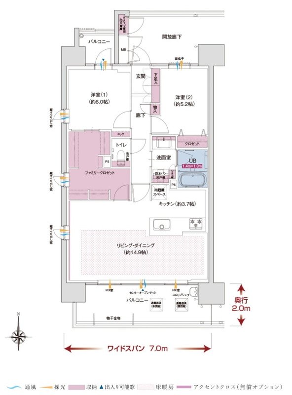
- 間取り
-
3LDK
間取りを見る(8件)
- 販売スケジュール
-
2025年11月上旬 販売開始予定

