ウエリス赤坂BAYSIDE 間取り A type
タイプ

A type

間取り

2LDK+WIC+SIC

専有面積

45.86㎡

バルコニー面積

8.4㎡

備考

サービススペース/1.32㎡

  • ウォークインクローゼット
  • シューズインクローゼット
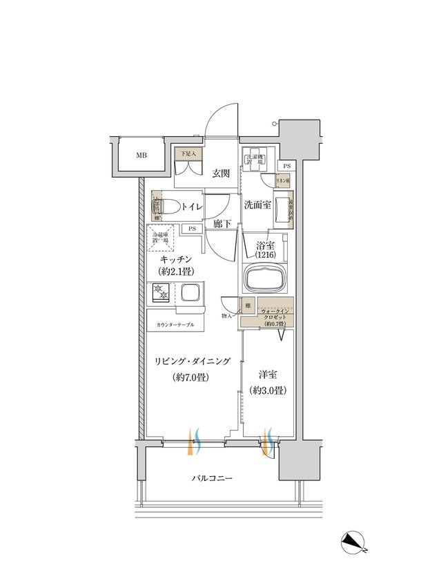
ウエリス赤坂BAYSIDE 間取り B2 type
タイプ

B2 type

間取り

1LDK+WIC

専有面積

33.18㎡

バルコニー面積

7.3㎡

  • ウォークインクローゼット

このページの一番上へ