間取り
この物件の詳細情報に戻る3LDK掲載7件
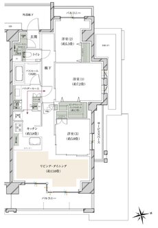
FC:ファミリークロゼット BW:ビッグウォークインクロゼット SC:シューズインクロゼット W:ウォークインクローゼット R:ルーフバルコニー
※掲載の間取図は計画段階の図面を基に描き起こしたもので簡略化して表現されています。行政指導及び施工上の理由等のため、今後内容が変更になる場合があります。詳しくは図面集にてご確認ください。
※リビング・ダイニングの畳数表記については、リビング・ダイニングの扉より内側の面積からキッチンの面積を差し引いたもので算出しております。
関連する他の物件も見てみる
特徴
- 子どもと暮らす(181)
- 対面キッチン(178)
- I型キッチン(174)
- ウォークインクローゼット(167)
- 床暖房(158)
- 可変式間仕切り(138)
- 玄関からリビングが見えない間取り(135)
- 複数沿線利用可能(134)
- 食器洗い乾燥機(食洗機)(125)
- 宅配ボックス(109)
- 浴室暖房換気乾燥機(107)
- 平置き駐車場(106)
- 高級マンション・ハイグレードマンション(101)
- 複層ガラス(ペアガラス)(100)
- ZEHマンション(95)
- 2面バルコニー(93)
- 南向き(92)
- ペット可(90)
- 24時間ゴミ出し可能(87)
- 西向き(75)
- 東向き(75)
- 大規模マンション(73)
- 二重床/二重天井(69)
- ラウンジ(68)
- 出入口が2か所以上あるキッチン(57)
- ペット共用施設(56)
- ルーフバルコニー(45)
- 広いリビング(33)
- 北向き(30)
- アイランドキッチン(24)
- L字バルコニー(23)
- メゾネットタイプ(7)
- オープンキッチン(7)
- 浴室テレビ・オーディオ(2)
地域
間取り
価格帯
不動産会社
駅
沿線

