サーパス草津 間取り Bタイプ
タイプ

Bタイプ

間取り

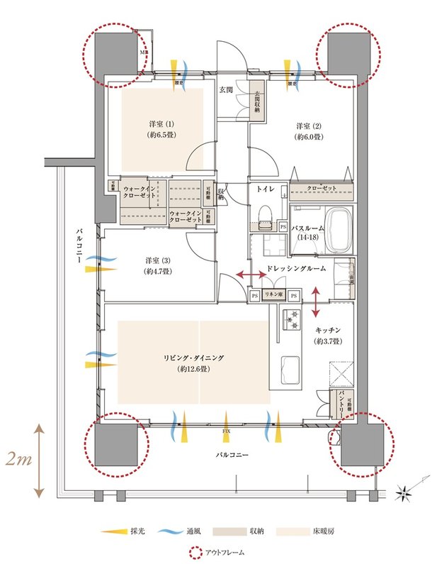
3LDK+WIC

専有面積

63.03㎡

バルコニー面積

11.52㎡

  • 可変式間仕切り
  • ウォークインクローゼット
  • 広いバルコニー
  • スロップシンク
  • 南東向き
サーパス草津 間取り Dタイプ
タイプ

Dタイプ

間取り

3LDK

専有面積

67.34㎡

バルコニー面積

11.42㎡

  • 広いバルコニー
  • スロップシンク
  • 南東向き
サーパス草津 間取り Eタイプ
タイプ

Eタイプ

間取り

2LDK

専有面積

56.32㎡

バルコニー面積

11.80㎡

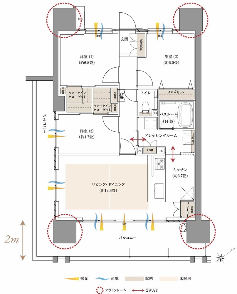
備考

【家具レイアウト間取り】
【1】ウォールドアを開放し、約15.7畳の開放的なリビング・ダイニングとしても利用可能。
【2】デッドスペースの少ないアウトフレーム設計を採用し、家具レイアウトの幅が広がる。
【3】掃除機などを充電できるコンセント付き収納や水回りを中心に集めたプランニングなどスムーズな家事動線を実現。

  • 可変式間仕切り
  • 広いバルコニー
  • 南東向き

このページの一番上へ