- 価格
-
7000万円台~1億200万円台(100万円単位)(予定)
月々の支払い額を見る
- 専有面積
-
63.56㎡~80.70㎡
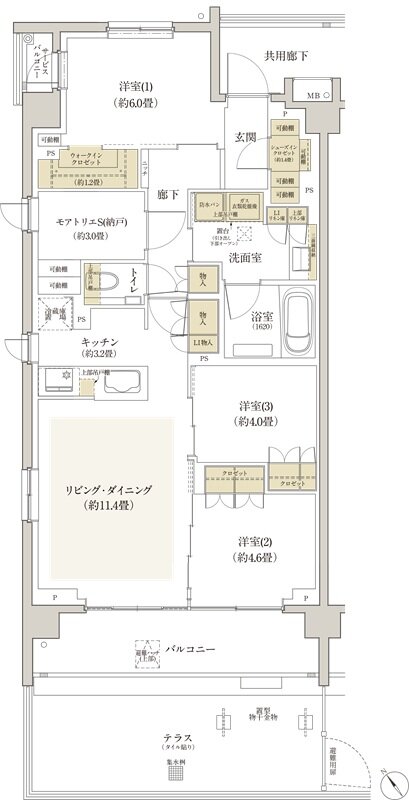
- 間取り
-
3LDK
間取りを見る(5件)
- 販売スケジュール
-
2026年1月下旬より販売開始予定

