- 価格
-
価格未定(予定)
- 専有面積
-
61.24㎡~86.84㎡
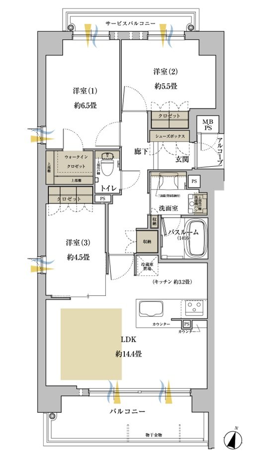
- 間取り
-
2LDK、3LDK
間取りを見る(7件)
- 販売スケジュール
-
販売予定時期:2026年2月下旬

