- 価格
-
5230万円~1億2000万円
月々の支払い額を見る
- 専有面積
-
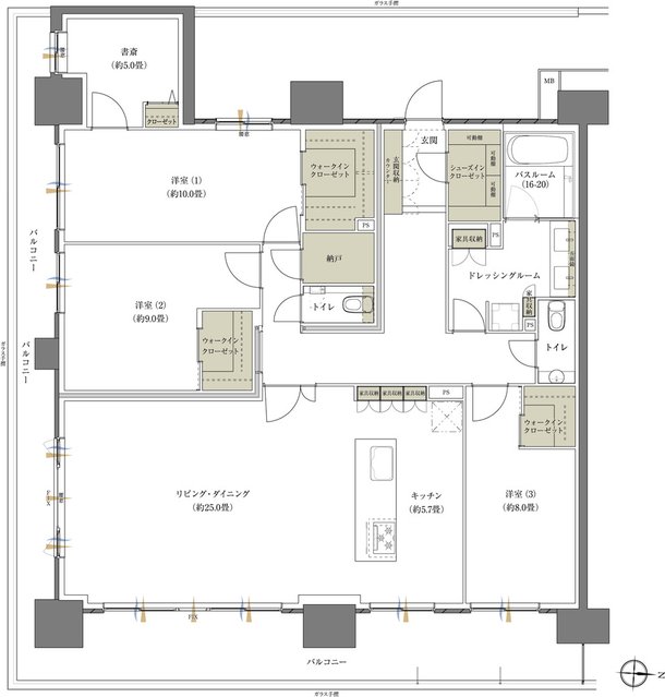
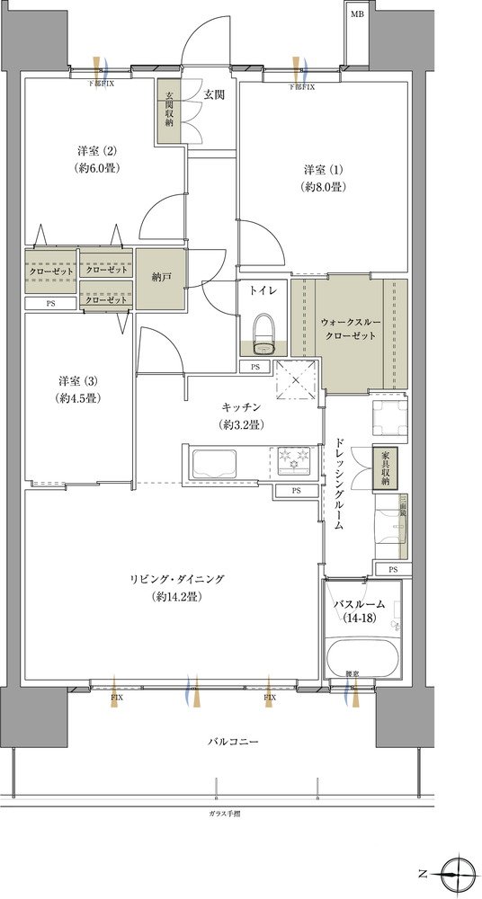
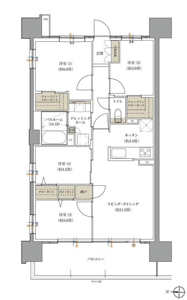
63.84㎡~103.24㎡
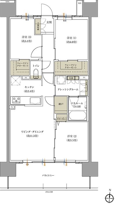
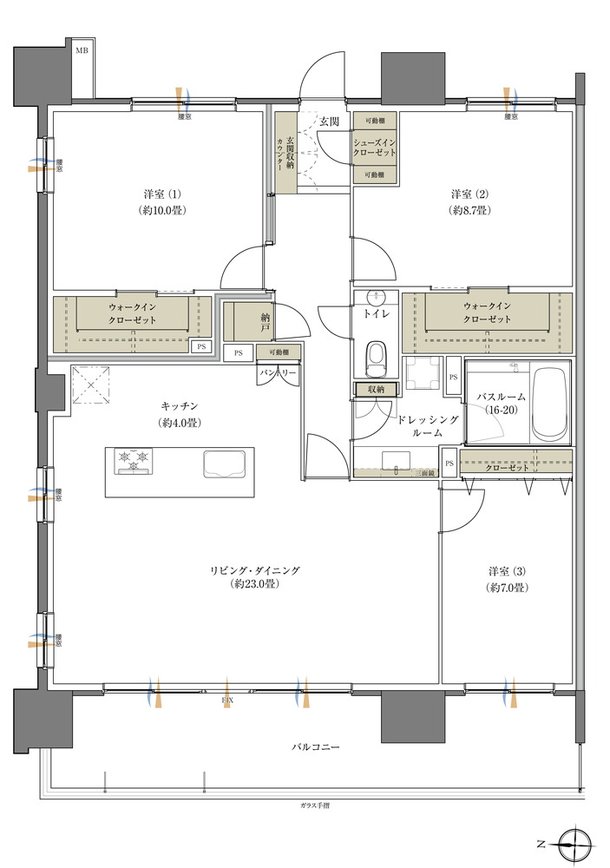
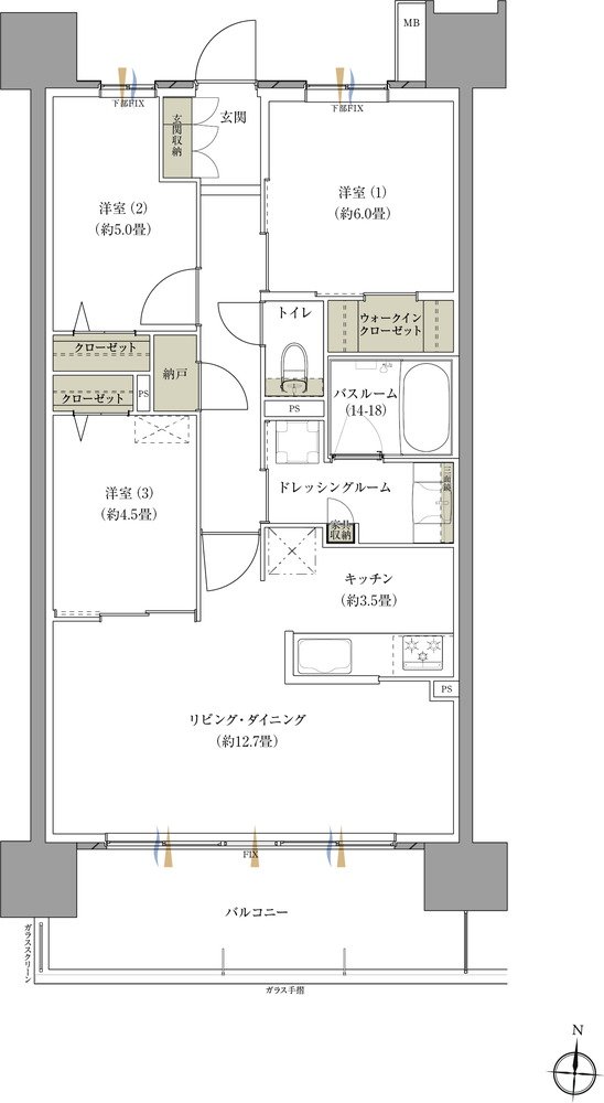
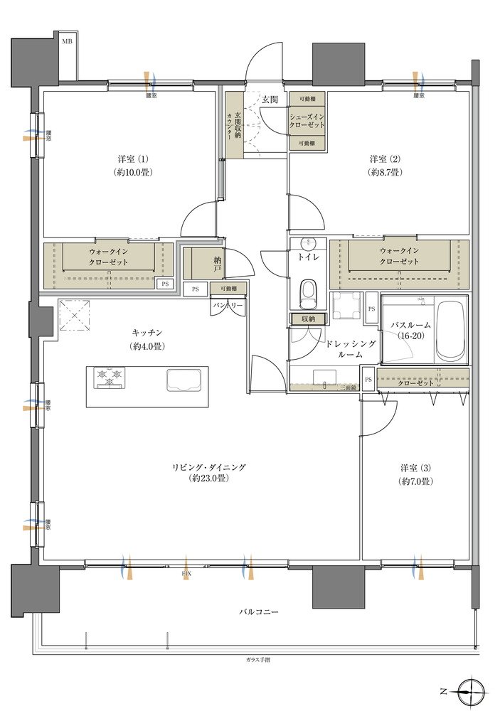
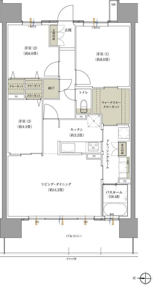
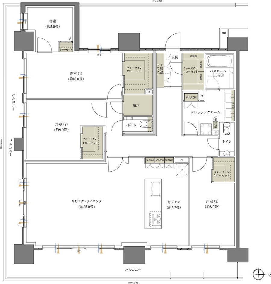
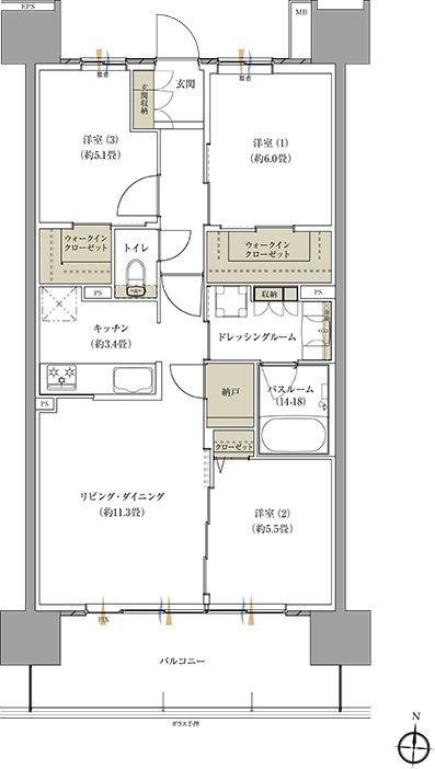
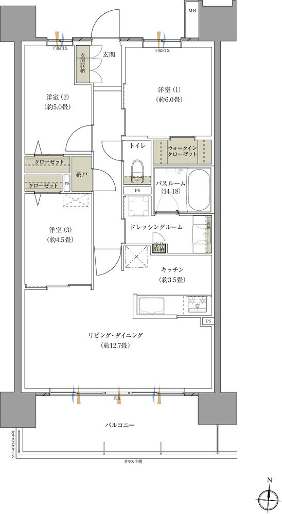
- 間取り
-
2LDK~4LDK
間取りを見る(13件)
- 販売スケジュール
-
先着順申込み受付中

