- 価格
-
8100万円~1億6900万円
月々の支払い額を見る
- 専有面積
-
43.33㎡~73.77㎡
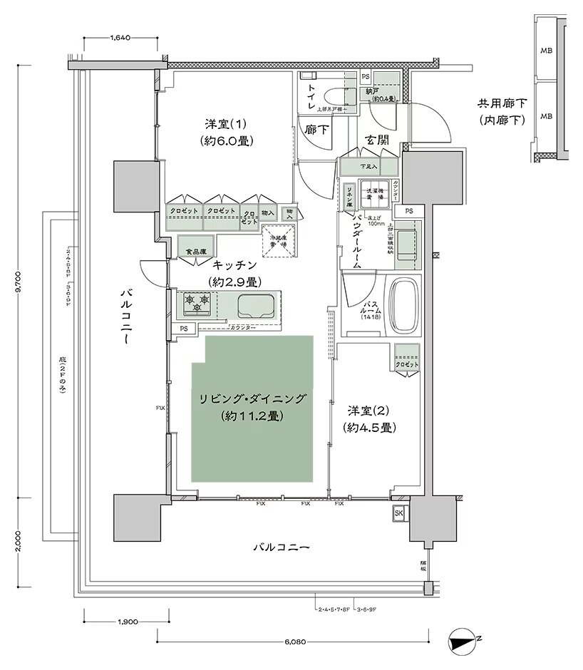
- 間取り
-
1LDK~3LDK
間取りを見る(8件)
- 販売スケジュール
-
2026年3月14日午前10時 登録受付開始 登録受付期間:3月14日(土)10時~19日(木)13時 抽選日:3月19日(木) 14時

