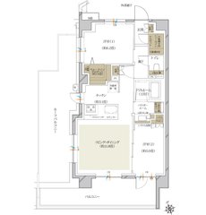
間取り
この物件の詳細情報に戻る2LDK掲載2件
※S=サービスルーム(納戸)、W=ウォークインクロゼット、BW=ビッグウォークインクロゼット、SC=シューズインクロゼット、OL=オープンエアリビング、T=テラス、PG=プライベートガーデン、N=納戸、R=ルーフバルコニー
※掲載の間取図は計画段階の図面を基に描き起こしたもので簡略化して表現されています。行政指導及び施工上の理由等のため、今後内容が変更になる場合があります。詳しくは図面集にてご確認ください。
※リビング・ダイニングの畳数表記については、リビング・ダイニングの扉より内側の面積からキッチンの面積を差し引いたもので算出しております。
関連する他の物件も見てみる
特徴
- 対面キッチン(83)
- I型キッチン(81)
- 子どもと暮らす(79)
- ウォークインクローゼット(78)
- 可変式間仕切り(76)
- 床暖房(70)
- 複数沿線利用可能(63)
- 一人暮らし・二人暮らし向け(62)
- 浴室暖房換気乾燥機(56)
- 食器洗い乾燥機(食洗機)(55)
- 宅配ボックス(55)
- 販売前・販売予定(55)
- シューズインクローゼット(55)
- モデルルーム公開中(53)
- 玄関からリビングが見えない間取り(49)
- 複層ガラス(ペアガラス)(47)
- ペット可(46)
- ハンズフリーキー(43)
- 24時間ゴミ出し可能(43)
- エコマンション(40)
- 防災設備(36)
- 二重床/二重天井(32)
- 高級マンション・ハイグレードマンション(32)
- 南向き(30)
- 2面バルコニー(30)
- 東向き(28)
- 南東向き(25)
- ペット共用施設(24)
- ミストサウナ(16)
- テラス(16)
- ルーフバルコニー(15)
- 専用庭(12)
- 出入口が2か所以上あるキッチン(12)
- 広いリビング(11)
- アイランドキッチン(9)
- ポーチ(6)
- オープンキッチン(5)
- リバーサイド・川沿い・水辺(5)
地域
間取り
価格帯
不動産会社
駅
沿線

