ヴェレーナ日吉 間取り A type(先着順販売住戸)
タイプ

A type(先着順販売住戸)

間取り

3LDK+BW+N

専有面積

68.77㎡

バルコニー面積

13.43㎡

備考

サービススペース面積:2.85㎡
エスコートポーチ面積:5.49㎡

  • ポーチ
  • 可変式間仕切り
  • ウォークインクローゼット
  • 出入口が2か所以上あるキッチン
  • 2面バルコニー
  • 南向き
ヴェレーナ日吉 間取り B type(先着順販売住戸)
タイプ

B type(先着順販売住戸)

間取り

2LDK+W+SC

専有面積

55.62㎡

バルコニー面積

9.53㎡

  • 玄関からリビングが見えない間取り
  • 可変式間仕切り
  • ウォークインクローゼット
  • シューズインクローゼット
  • 南向き
ヴェレーナ日吉 間取り C type(先着順販売住戸)
タイプ

C type(先着順販売住戸)

間取り

3LDK+2W+SC+N

専有面積

75.21㎡

バルコニー面積

-

備考

バルコニー面積:9.04㎡[2階]・9.64㎡[3〜7階]
サービススペース面積:3.24㎡

  • 玄関からリビングが見えない間取り
  • 可変式間仕切り
  • ウォークインクローゼット
  • シューズインクローゼット
  • 東向き
ヴェレーナ日吉 間取り FOL type(先着順販売住戸)
タイプ

FOL type(先着順販売住戸)

間取り

3LDK+OL+T+PG+BW+W+N

専有面積

70.52㎡

バルコニー面積

-

備考

オープンエアリビング面積:13.41㎡
テラス面積:3.78㎡
プライベートガーデン面積:4.86㎡

  • 可変式間仕切り
  • ウォークインクローゼット
  • テラス
  • 専用庭
  • 東向き
ヴェレーナ日吉 間取り HOL type(先着順販売住戸)
タイプ

HOL type(先着順販売住戸)

間取り

3LDK+OL+T+PG+SC

専有面積

69.80㎡

バルコニー面積

-

備考

エスコートポーチ面積:5.51㎡
オープンエアリビング面積:14.06㎡
テラス面積:7.11㎡
プライベートガーデン面積:39.14㎡

  • ポーチ
  • 可変式間仕切り
  • シューズインクローゼット
  • テラス
  • 専用庭
  • 東向き
ヴェレーナ日吉 間取り Kr type(先着順販売住戸)
タイプ

Kr type(先着順販売住戸)

間取り

3LDK+R+BW+W+N

専有面積

71.00㎡

バルコニー面積

14.05㎡

備考

ルーフバルコニー面積:22.65㎡

  • 可変式間仕切り
  • ウォークインクローゼット
  • 2面バルコニー
  • ルーフバルコニー
  • 南東向き
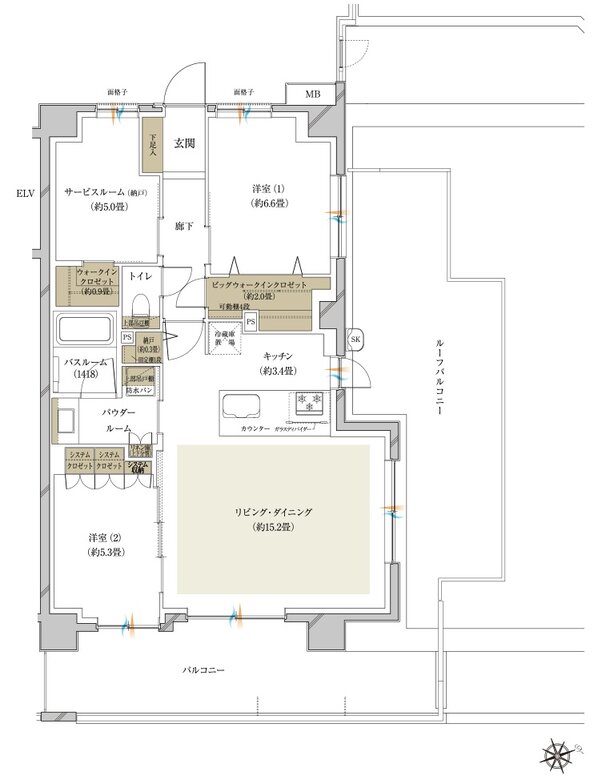
ヴェレーナ日吉 間取り Lr type(先着順販売住戸)
タイプ

Lr type(先着順販売住戸)

間取り

2LDK+S(納戸)+R+BW+W+N

専有面積

78.38㎡

バルコニー面積

15.42㎡

備考

ルーフバルコニー面積:26.22㎡

  • 可変式間仕切り
  • 広いリビング
  • ウォークインクローゼット
  • 2面バルコニー
  • ルーフバルコニー
  • 南東向き

このページの一番上へ