ヴェレーナ日吉 間取り D type
タイプ

D type

間取り

2LDK+S(納戸)+BW

専有面積

61.12㎡

バルコニー面積

-

備考

バルコニー面積:11.40㎡[2階]・12.00㎡[3〜6階]

  • 可変式間仕切り
  • ウォークインクローゼット
  • 東向き
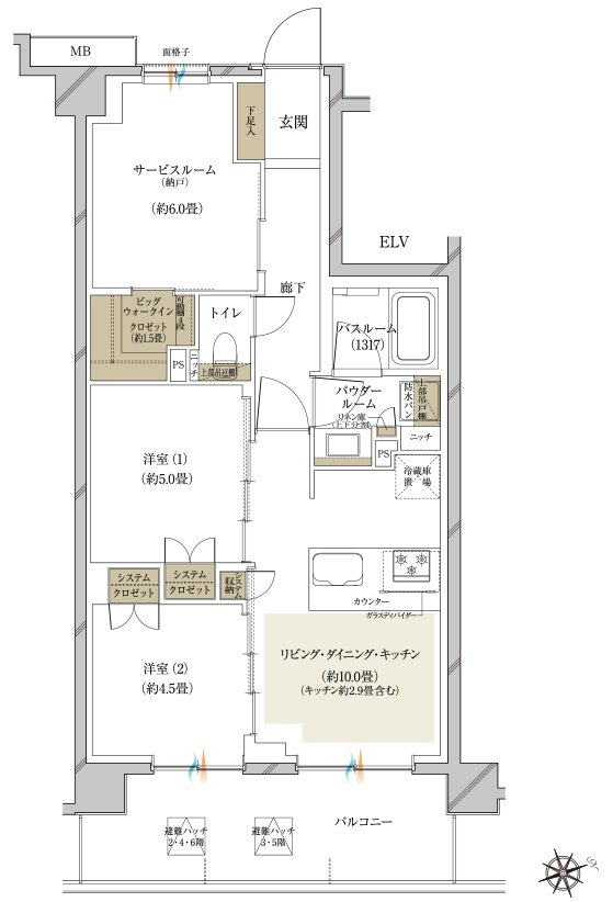
ヴェレーナ日吉 間取り F type
タイプ

F type

間取り

3LDK+BW+W+N

専有面積

70.52㎡

バルコニー面積

-

備考

バルコニー面積:10.70㎡[2階]・11.32㎡[3・4階]

  • 可変式間仕切り
  • ウォークインクローゼット
  • 東向き
ヴェレーナ日吉 間取り FOL type
タイプ

FOL type

間取り

3LDK+OL+T+PG+BW+W+N

専有面積

70.52㎡

バルコニー面積

-

備考

オープンエアリビング面積:13.41㎡
テラス面積:3.78㎡
プライベートガーデン面積:4.86㎡

  • 可変式間仕切り
  • ウォークインクローゼット
  • テラス
  • 専用庭
  • 東向き
ヴェレーナ日吉 間取り Mr type
タイプ

Mr type

間取り

2LDK+R+BW+SC

専有面積

60.51㎡

バルコニー面積

13.57㎡

備考

ルーフバルコニー面積:22.28㎡

  • 玄関からリビングが見えない間取り
  • 可変式間仕切り
  • ウォークインクローゼット
  • シューズインクローゼット
  • 出入口が2か所以上あるキッチン
  • 2面バルコニー
  • ルーフバルコニー
  • スロップシンク
  • 南向き

このページの一番上へ