ヴェレーナ日吉 間取り C type
タイプ

C type

間取り

3LDK+2W+SC+N

専有面積

75.21㎡

バルコニー面積

-

備考

バルコニー面積:9.04㎡[2階]・9.64㎡[3〜7階]
サービススペース面積:3.24㎡

  • 玄関からリビングが見えない間取り
  • 可変式間仕切り
  • ウォークインクローゼット
  • シューズインクローゼット
  • 東向き
ヴェレーナ日吉 間取り F type
タイプ

F type

間取り

3LDK+BW+W+N

専有面積

70.52㎡

バルコニー面積

-

備考

バルコニー面積:10.70㎡[2階]・11.32㎡[3・4階]

  • 可変式間仕切り
  • ウォークインクローゼット
  • 東向き
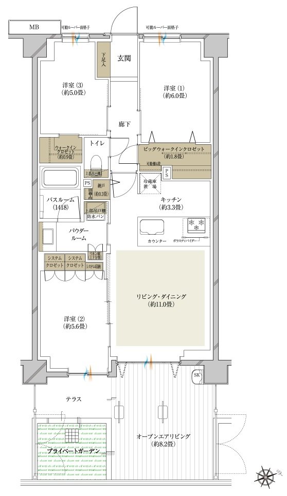
ヴェレーナ日吉 間取り FOL type
タイプ

FOL type

間取り

3LDK+OL+T+PG+BW+W+N

専有面積

70.52㎡

バルコニー面積

-

備考

オープンエアリビング面積:13.41㎡
テラス面積:3.78㎡
プライベートガーデン面積:4.86㎡

  • 可変式間仕切り
  • ウォークインクローゼット
  • テラス
  • 専用庭
  • 東向き
ヴェレーナ日吉 間取り HOL type
タイプ

HOL type

間取り

3LDK+OL+T+PG+SC

専有面積

69.80㎡

バルコニー面積

-

備考

エスコートポーチ面積:5.51㎡
オープンエアリビング面積:14.06㎡
テラス面積:7.11㎡
プライベートガーデン面積:39.14㎡

  • ポーチ
  • 可変式間仕切り
  • シューズインクローゼット
  • テラス
  • 専用庭
  • 東向き
ヴェレーナ日吉 間取り Jr type
タイプ

Jr type

間取り

3LDK+R+BW

専有面積

70.56㎡

バルコニー面積

13.95㎡

備考

ルーフバルコニー面積:27.18㎡

  • 可変式間仕切り
  • ウォークインクローゼット
  • 2面バルコニー
  • ルーフバルコニー
  • 東向き
ヴェレーナ日吉 間取り Mr type
タイプ

Mr type

間取り

2LDK+R+BW+SC

専有面積

60.51㎡

バルコニー面積

13.57㎡

備考

ルーフバルコニー面積:22.28㎡

  • 玄関からリビングが見えない間取り
  • 可変式間仕切り
  • ウォークインクローゼット
  • シューズインクローゼット
  • 出入口が2か所以上あるキッチン
  • 2面バルコニー
  • ルーフバルコニー
  • スロップシンク
  • 南向き

このページの一番上へ